• О нас
  • Проекты
  • Готовые дома
  • Преимущества
  • Контакты

Проект ПАНОРАМА

Одноэтажный дом из газобетона

Площадь дома (м2)

120 м2

Количество этажей

1

Количество комнат

3

Количество санузлов

2

ПОДРОБНЕЕ:

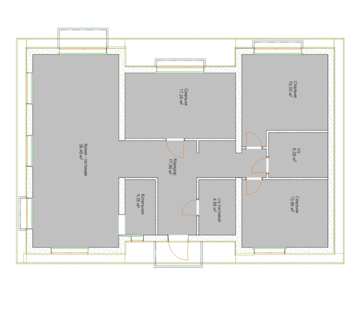
  • Кухня - гостиная 39,48 м.кв.
  • Спальня 17,28 м. кв.
  • Спальня 16,5 м. кв.
  • Спальня 13,86 м. кв.
  • Котельная 4,05 м. кв.
  • Сан - узел 6,38 м. кв.
  • Сан - узел гостевой 4,86 м. кв.
  • Коридор 17,56 м. кв.
  • Площадь дома 120 м. кв.
Узнайте стоимость дома
Планировка дома продумана до мелочей, чтобы создать просторное, светлое и удобное пространство для всей семьи, с гармоничным переходом между комнатами и максимальным комфортом.

Нажимая на кнопку, вы даете согласие на обработку персональных данных

ИП КРИВОГОРНИЦЫН А.О.
ИНН 380471284659
ОГРНИП 324180000012777
© 2025 SUNRISE. Все права защищены
  • О компании
  • Проекты
  • Готовые дома
  • Портфолио
  • Преимущества
  • Отзывы
  • Политика конфиденциальности
Материалы сайта защищены законом РФ об авторских и смежных правах.
Копирование запрещено. Данный сайт носит исключительно информационный
характер и не является публичной офертой

Оставьте свои контактные данные, и мы перезвоним в рабочее время

Нажимая на кнопку, вы даете согласие на обработку персональных данных

Оставьте свои контактные данные, и мы перезвоним в рабочее время

Нажимая на кнопку, вы даете согласие на обработку персональных данных